这是一套480多平的别墅户型,整体空间以现代简约风的设计基调,在室内大面积加入原木质感的元素,布置上现代优雅的家具,再以极简儒雅的软装布置,营造了一个自然舒适而惬意的人文居住之地。
客厅

▲客厅天花吊平顶+无主灯设计,地面铺设木地板,电视墙也是以乳胶漆的基础定制了一个半墙高的电视柜,整个空间设计以简洁现代的氛围为主。

▲浅灰色皮艺沙发,还有与沙发质感一致的休闲沙发椅,为客厅提供了惬意轻松的坐席体验,而方形茶几上则是摆上陶艺花瓶与杂志,为客厅增添了几分端庄现代的优雅气质。

▲电视墙的定制电视柜是胡桃木色的设计,外观简洁布置电视机后,带来一种沉稳端庄的氛围感。


▲作为横厅户型,沙发后方并非沙发墙,而是西厨区域,沙发后方同样采取现代风的设计,带来一种现代优雅而舒适的设计效果。
西厨操作台

▲沙发后方的是西厨操作台,定制白色的橱柜与吊柜,吊柜上的空格整齐地摆上瓶瓶罐罐,结合雅白的墙面砖,显得时尚优雅而现代大方;在橱柜右边的通顶电器柜嵌入安装电器,也为空间提供了方便灵活的烹饪体验。

▲在沙发后方的中岛台,雅白的石材台面,布置成一个实用优雅的操作台面。
餐厅

▲餐厅与客厅连通的格局,餐桌三房装上铜色吊灯,下方布置端庄的茶具与花瓶,搭配上卡其色的皮艺餐椅,营造了一个华丽精致而儒雅的用餐空间。

▲餐厅旁边则是房子的楼梯,黑色扶手+木质踏步,楼梯下的空间装上柜门作为收纳柜使用,整个空间设计简洁大方而实用。


▲厚板台面的实木餐桌,搭配卡其色皮艺餐椅,还有铜色吊灯,整个餐厅的软装质感与木地板的材质保持一致,风格和谐自然。

▲餐厅上方的二楼过道,以木栏栅作为隔墙,则是让二楼过道也有着更加雅韵的设计效果。
卧室

▲卧室地面、墙面都以同样的橡木色材质,布置上卡其色的皮艺床与床尾凳,加上灰色乳胶漆墙面与天花,布置出一个简约舒适而卧室空间。


▲床头墙的墙脚区域是木饰面材质的,上方则是灰色乳胶漆的墙体,两侧摆上木质感的电视柜,加入绿植与摆饰品也显得更加清新舒适。

▲床尾墙木饰面中暗藏了一扇隐形门,左侧加入木色百叶帘的设计,使得空间聪明简约舒适的高级氛围感。
衣帽间

▲衣帽间内部以开放式的衣柜设计,空格架上摆上各式包包、鞋子,中间摆一张板凳,为主人提供华丽优雅的收纳体验。
主卫

▲主人卫生间摆上了成品浴缸,定制双人位的浴室柜,整个卫浴空间显得现代优雅而舒适。

▲在靠窗位置定制一个梳妆台,为主人提供了明亮舒适的梳妆打扮的空间。
地下休闲室


▲地下室布置休闲沙发与茶几组合,背景墙以定制的展示柜的设计,并加入了壁炉的设计,营造出了一个端庄高级的休闲厅功能。


▲地下室的天井采光引入,使得地下室空间也明亮起来。
品茶区

▲品茶区布置一张长方形茶桌,搭配几张灰色皮艺椅子,台面布置茶具与花瓶,营造出了一个简洁端庄而儒雅的品茶空间。

▲茶室角落位置摆上原木色端景架,架子上摆着陶艺花瓶,一旁墙面挂上一幅方正的装饰画,也为空间增添了几分禅意儒雅的气质感。
卧室

▲卧室简约现代的空间,加入木质的房门、推拉门,窗户的百叶帘也是木色搭配,整个空间简约木质感的氛围,显得惬意自然而从容。

▲浅咖色的墙面,搭配灰色皮艺床+净白的床单,床头旁装上了床头吊灯,整个空间也是显得格外的自然舒适而温馨。
卫生间

▲卫生间在灰色水磨石地砖+浅灰色墙面砖的设计,洗手盆台面也是水磨石质感的设计,搭配木质浴室柜与百叶帘,营造出一个简约舒适而实用的卫浴空间。
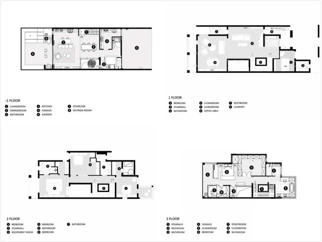
平面布置图

设计:双宝设计,点评:设计馆